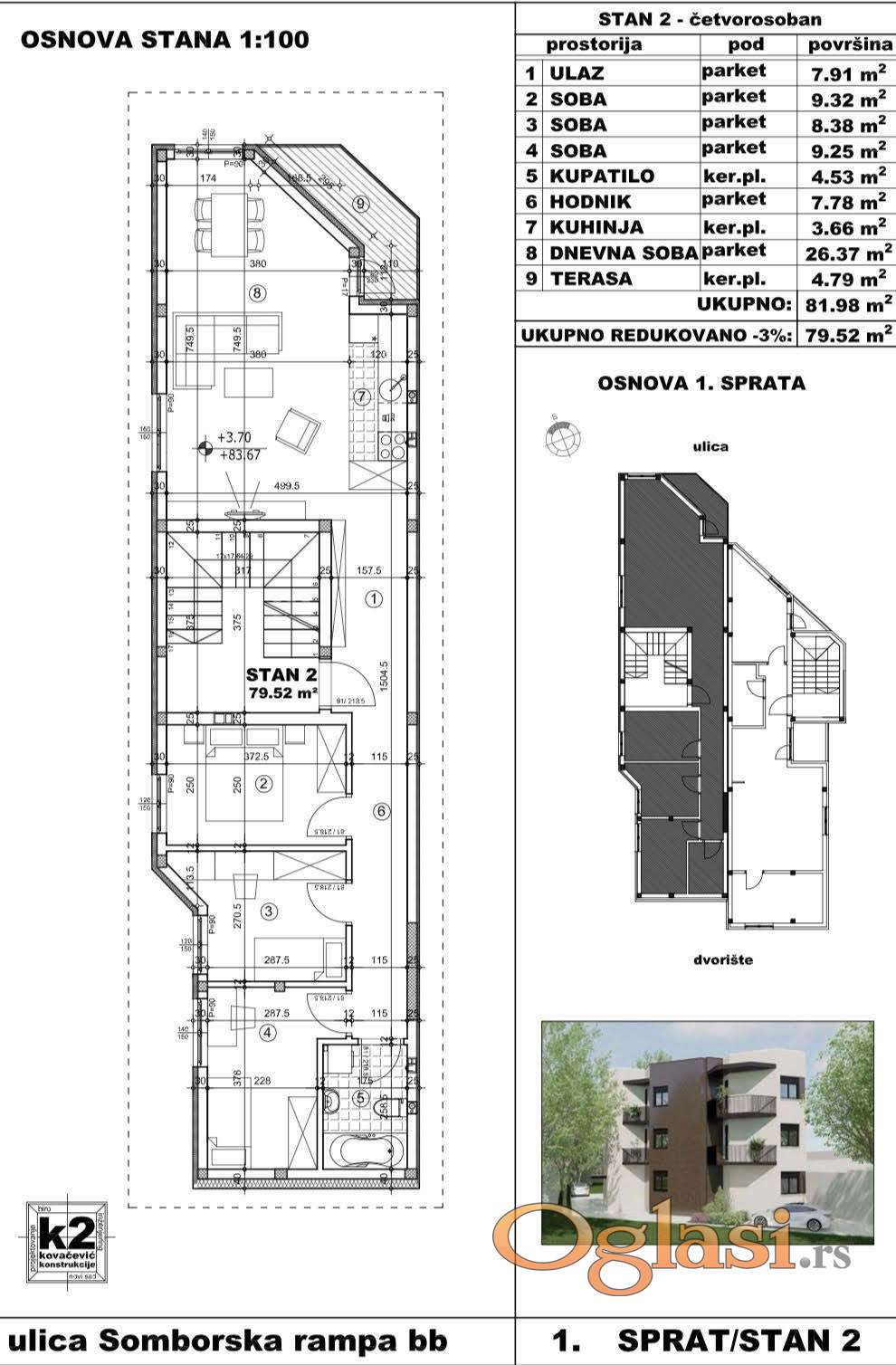
Četvorosoban stan, 80 m², novogradnja, Somborska rampa
| Lokacija: | Novo naselje (Srbija, Novi Sad, Novi Sad) |
| Ulica i broj: | Somborska rampa |
| Sobnost: | Četvorosoban i više |
| Kvadratura: | 80m2 |
| Stanje objekta: | U izgradnji |
| Grejanje: | Gas |
| Nivo u zgradi: | 1. sprat |
Dodatne informacije
Terasa
Tekst oglasa
Prodaju se stanovi direktno od investitora u modernoj urbanoj vili sa ukupno šest stambenih jedinica, smeštenoj na odličnoj lokaciji u ul. Somborska rampa u neposrednoj blizini Kneževog parka. Objekat je projektovan kao dve povezane celine, sa dva ulaza, i organizovan je kroz etaže: visoko prizemlje, prvi sprat i drugi sprat.
Ovaj stambeni objekat predstavlja odličan izbor kako za porodično stanovanje, tako i za investiciju, jer se nalazi u delu grada koji se ubrzano razvija i ima veliki potencijal za dalji rast vrednosti nekretnina.
Posebna prednost lokacije je to što je, prema urbanističkom planu, u neposrednoj blizini planirana izgradnja osnovne škole i vrtića, što ovu lokaciju čini veoma pogodnom za porodice sa decom. Takođe, ispred samog objekta planirana je izgradnja saobraćajnice sa četiri trake, što će dodatno doprineti boljoj povezanosti i pristupačnosti ovog dela grada.
Objekat je trenutno u izgradnji, a završetak radova je planiran za maj 2027. godine
Cena stana: 2.050,00 € /m² + PDV
Mogućnost kupovine parking mesta.
Za više informacija o dostupnim kvadraturama, strukturi stanova i uslovima kupovine, kontakt telefon: +381 64 960 41 91
Mogućnost kupovine putem stambenog kredita.
Cena: 180.400,00 EUR
