Troiposoban stan u novogradnji sa povraćajem PDV-a, Durlan ID#7761

Lokacija: PANTELEJ - Durlan (Srbija, Niš, Niš)
Sobnost: Troiposoban
Kvadratura: 111m2
Grejanje: Etažno
Nivo u zgradi: 2. sprat

Dodatne informacije

Terasa, Lift

Tekst oglasa

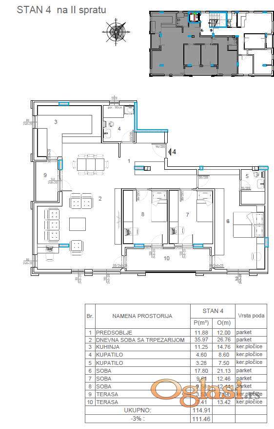
Prodaje se troiposoban stan u novogradnji u Durlanu u stambenoj zgradi koja ima P+4 sprata. Stan je površine 111,46m2, na II spratu. Struktura stana: ulazni hodnik, dnevni boravak sa trpezarijom i kuhinjom, tri spavaće sobe, kupatilo i terasa. Stanovi su veoma kvalitetne i moderne gradnje: fasada po standardima energetske efikasnosti objekata, 10cm stiropor spoljne izolacije, izolacija podova i zidova, PVC stolarija, 4s klima gard stakla, elektro podizači za roletne, eg kompletno, masiv parket , sanitarija prve klase. Zgrada je smeštena u mirnoj ulici na lepoj lokaciji, idealnoj za mirno, porodično stanovanje i u neposrednoj je blizini svih objekata neophodnih za svakodnevni život. U cenu je uključen PDV i kupci prvog stana imaju pravo na povraćaj PDV-a u iznosu od 10%. Za više informacija o ovoj ili drugim nekretninama i zakazivanje razgledanja kontaktirajte agenta na broj telefona iz oglasa (poziv, sms, viber) ili putem e-maila. Kompletnu ponudu dostupnih nekretnina možete pronaći na našem sajtu. Agencija Proagent nekretnine je upisana u Registru posrednika pod brojem: 940.
Objavljen:

Cena: 245.200,00 EUR