Salonac kod Dunavskog parka
| Lokacija: | Centar (Stari grad) (Srbija, Novi Sad, Novi Sad) |
| Ulica i broj: | Vojvode Putnika 13 |
| Sobnost: | Trosoban |
| Kvadratura: | 112m2 |
| Stanje objekta: | Starija gradnja |
| Grejanje: | Gradsko |
| Nivo u zgradi: | 2. sprat |
Dodatne informacije
Terasa, Podrum, ostava, Internet, Telefon, Satelitska, kablovska TV, Klima
Tekst oglasa
Osnovne informacije:
-
Lokacija: Stari grad / Centar, Novi Sad (neposredna blizina Dunavskog parka)
-
Kvadratura: 112m²
-
Struktura: Trosoban
-
Tip stana: Salonski stan
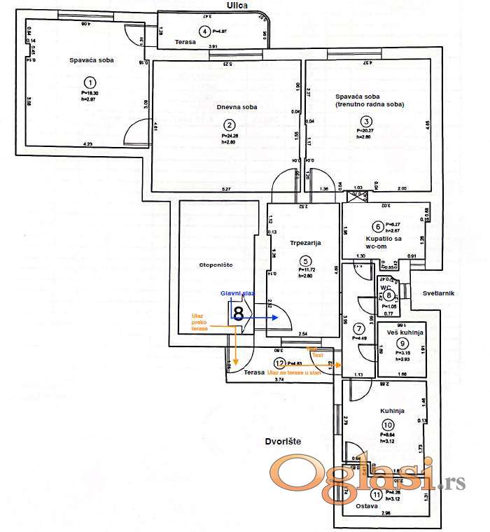
Opis nekretnine: Prodaje se izuzetno komforan, prostran i svetao salonski stan na jednoj od najtraženijih i najprestižnijih lokacija u Novom Sadu. Nekretnina je smeštena u mirnom delu ulice Vojvode Putnika, na samo par koraka od Dunavskog parka, keja i strogog centra grada. Ova lokacija pruža savršen balans između urbanog života i mira, sa svim potrebnim sadržajima i infrastrukturom u neposrednoj blizini.
Raspored i prostorije: Stan se odlikuje klasičnim salonskim rasporedom sa prostranim prostorijama i puno prirodne svetlosti. Sastoji se od:
-
Prostrane dnevne sobe
-
Dve prostrane spavaće sobe
-
Centralne trpezarije
-
Odvojene kuhinje sa prirodnom ventilacijom (potpuno nova kuhinja sa svom belom tehnikom u garanciji)
-
Ostave uz kuhinju
-
Komfornog kupatila
-
Dodatnog gostinskog toaleta
-
Vešernice
-
Dve terase (jedna orijentisana ka ulici, druga ka dvorištu)
Investicioni potencijal: Ono što ovaj stan izdvaja na tržištu jeste njegov potencijal za adaptaciju. Zahvaljujući specifičnom rasporedu, kao i postojanju dva nezavisna ulaza (glavni ulaz i ulaz preko dvorišne terase), prostor se lako može pregraditi u dve potpuno nezavisne stambene jedinice. Ovo ga čini prilikom za investiranje u dve nekretnine za izdavanje (stan na dan ili dugoročno), ili dve nekretnine koje kombinuju stambeni i poslovni prostor.
Prateće prostorije: Stanu pripadaju dodatne prostorije koje nude obiman prostor za odlaganja stvari.
-
Tavanski prostor od čak 23m2.
-
Podrumski prostor u koji je sprovedena i priključena struja.
Ovakve nekretnine su prava retkost na tržištu. Za više informacija i obilazak stana kontaktirajte nas na telefon 0613207963.
Kupovina direktno od vlasnika, bez posredničkih provizija.
Cena: 340.000,00 EUR
