NOV LOKAL OD 330 M2 SA PARKINGOM NA TELEPU
| Lokacija: | Telep (Srbija, Novi Sad, Novi Sad) |
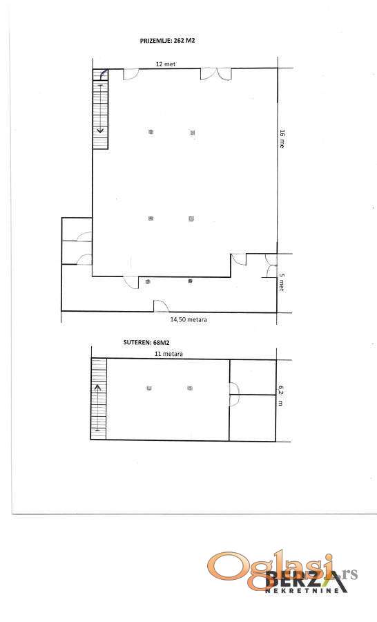
| Kvadratura: | 330m2 |
| Namena prostora: | Lokal |
Dodatne informacije
Nenamešten
Tekst oglasa
Agencijska šifra: 9112423. Izdaje se odličan lokal od 330 m2 u dva nivoa ( 262 m2 prizemlja i 68 m2 suterena) u prizemlju nove zgrade na Telepu. Prostor je klimatizovan i pokriven video nadzorom. Dva parking mesta su obezbeđena ispred lokala, a postoji i javni parking. Prizemlje se sastoji od glavne sale, magacinskog prostora i dva toaleta, a suteren sadrži jednu veću i dve manje prostorije. Pogodno za razne vrste delatnosti kao što su supermarketi, kladionice, ordinacije, kancelarije, restorane. Useljivo 1.6.2026. Potreban je depozit u visini jedne mesečne zakupnine.Agencijska provizija iznosi 100% od vrednosti prve mesečne zakupnine i plaća se jednokratno. Za više informacija pozovite na: 063/749-95-65 i 061/118-44-90 Berza nekretnine, Novi Sad, reg broj posrednika 1020
Obnovljen:
Cena: 2.700,00 EUR
