NOVI SAD - TELEP JUŽNI - 39.00 m2
| Lokacija: | Telep (Srbija, Novi Sad, Novi Sad) |
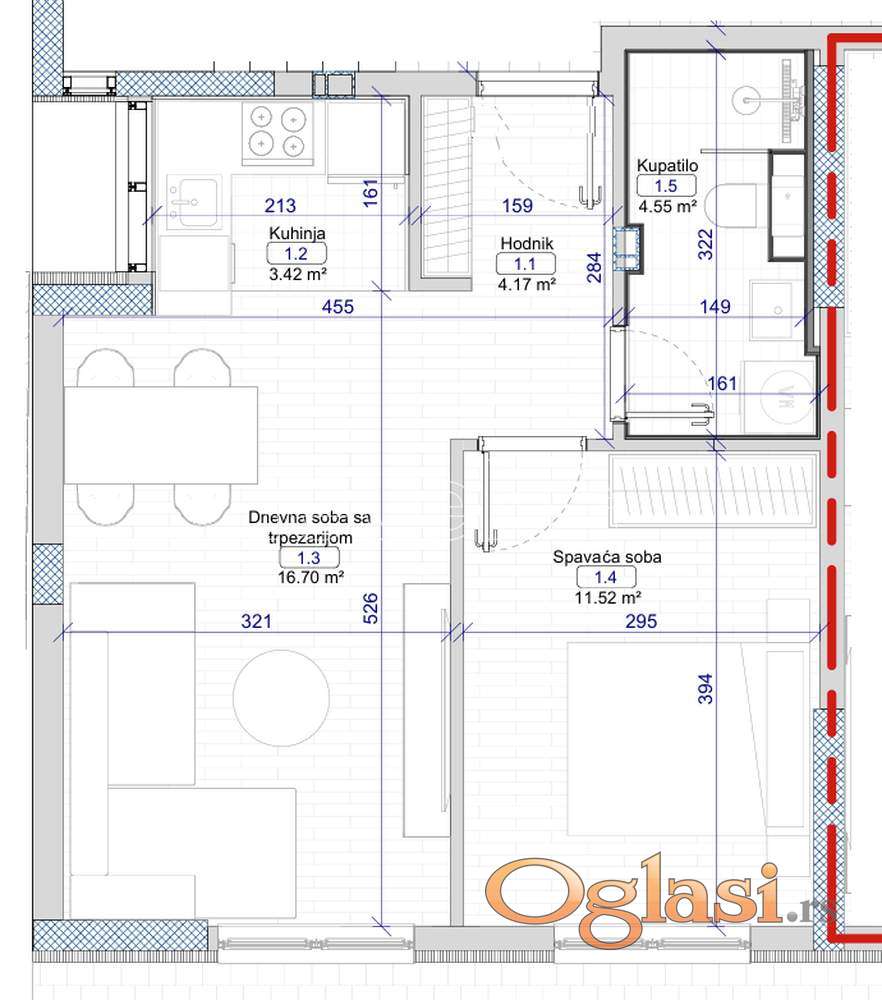
| Sobnost: | Dvosoban |
| Kvadratura: | 39m2 |
| Grejanje: | Etažno |
| Nivo u zgradi: | Prizemlje |
Tekst oglasa
NEKRETNINE NOVI SAD - ID OGLASA 1002974
TELEP - JUŽNI, DVOSOBAN STAN 39 m2
LEVEL PROPERTY, agencija za
nekretnine Vam predstavlja prodaju dvosobnog stana u kvalitetnoj
novogradnji sa rokom završetka jesen 2027.god. na Telepu. Prizemlje, lift, grejanje
centralno na gas sa kalorimetrima i razvedenim podnim grejanjem. Mogućnost
kupovine parking mesta u dvorištu zgrade.
Poštovani klijenti, u skladu sa Zakonom o posredovanju u prometu i zakupu nepokretnosti i Opštim uslovima poslovanja posrednika, prezentacija i razgledanje predmetne nepokretnosti kao i svih nekretnina iz agencijske ponude, moguće je samo uz potpisan Ugovor o posredovanju. Kupac je u obavezi da, u slučaju zaključenja kupoprodaje, isplati posredniku ugovorenu posredničku naknadu- agencijsku proviziju u ugovorenom iznosu, a u skladu sa Ugovorom o posredovanju. Vaš agent za nekretnine: Nenad Dalmacija, licenca broj 2043, mob: 0658236112.Vaša agencija za nekretnine LEVEL PROPERTY, registar posrednika broj 1949, Novi Sad, Dimitrija Tucovića 1, lokal broj 3, tel:021/24-007-00.
Objavljen:
Cena: 105.700,00 EUR
