Jednoiposoban stan u novogradnji sa povraćajem PDV-a, Durlan ID#7756
| Lokacija: | PANTELEJ - Durlan (Srbija, Niš, Niš) |
| Sobnost: | Jednoiposoban |
| Kvadratura: | 47m2 |
| Stanje objekta: | Novogradnja |
| Grejanje: | Etažno |
| Nivo u zgradi: | 1. sprat |
Dodatne informacije
Terasa, Lift
Tekst oglasa
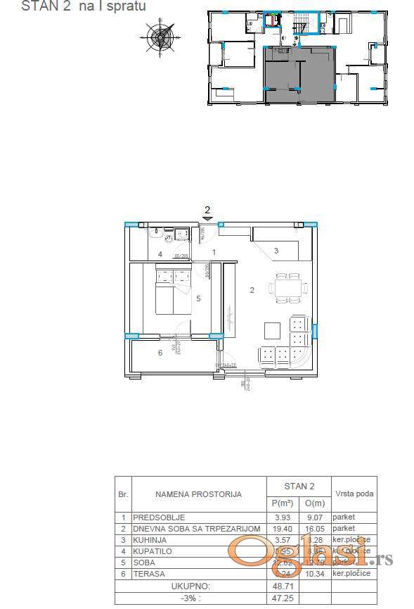
Prodaje se jednoiposoban stan u novogradnji u Durlanu u stambenoj zgradi koja ima P+4 sprata. Stan je površine 47,25m2, na I spratu. Struktura stana: ulazni hodnik, dnevni boravak sa trpezarijom i kuhinjom, spavaća soba, kupatilo i terasa. Stanovi su veoma kvalitetne i moderne gradnje: fasada po standardima energetske efikasnosti objekata, 10cm stiropor spoljne izolacije, izolacija podova i zidova, PVC stolarija, 4s klima gard stakla, elektro podizači za roletne, eg kompletno, masiv parket , sanitarija prve klase. Zgrada je smeštena u mirnoj ulici na lepoj lokaciji, idealnoj za mirno, porodično stanovanje i u neposrednoj je blizini svih objekata neophodnih za svakodnevni život. U cenu je uključen PDV i kupci prvog stana imaju pravo na povraćaj PDV-a u iznosu od 10%. Za više informacija o ovoj ili drugim nekretninama i zakazivanje razgledanja kontaktirajte agenta na broj telefona iz oglasa (poziv, sms, viber) ili putem e-maila. Kompletnu ponudu dostupnih nekretnina možete pronaći na našem sajtu. Agencija Proagent nekretnine je upisana u Registru posrednika pod brojem: 940.
Objavljen:
Cena: 103.950,00 EUR
