Povoljno - Stan u zgradi sa spa centrom 38,51m2

Lokacija: Vrnjačka Banja (Srbija, Vrnjačka Banja)
Sobnost: Jednosoban
Kvadratura: 38m2
Nivo u zgradi: 2. sprat

Tekst oglasa

Prilika koja se ne propušta!
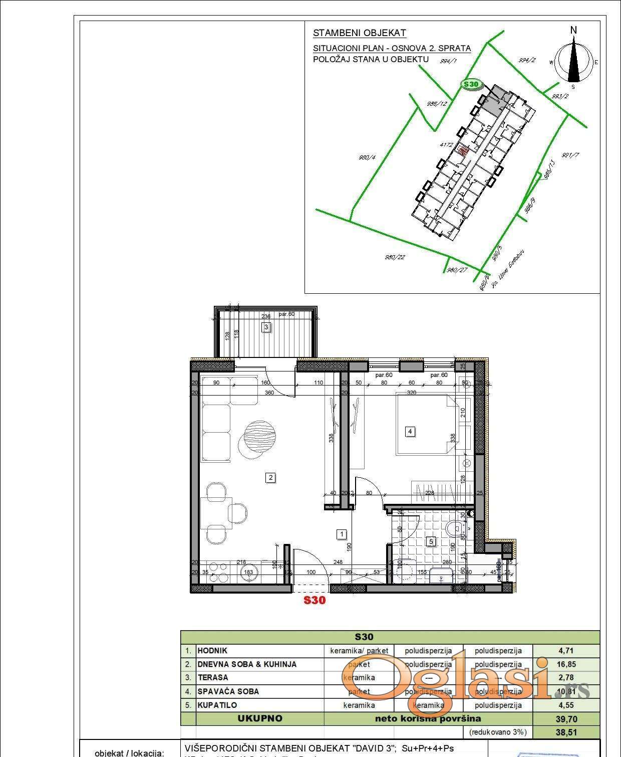
Na prodaju jednosoban stan površine 38,51m2, na drugom spratu luksuzne stambene zgrade u izgradnji, na samo nekoliko koraka od prelepog parka – idealno mesto za život u harmoniji sa prirodom i gradom.

Ovaj prestižni projekat donosi spa centar u sklopu zgrade (zatvoreni bazen i saune), kreiran da vam svakodnevno pruža osećaj odmora i relaksacije. Na raspolaganju je i mogućnost kupovine prostrane ostave za maksimalnu funkcionalnost, kao i mogućnost kupovine parking mesta.

Cena stana je 1.950evra/m2 + 10%PDV, što je ukupno 75.095 evra + PDV
Kupac prvog stana ostvaruje povraćaj PDV-a.
Cena parking mesta je 8.400 evra.
Doplata za spa centar je 2.700 evra + pdv.
Završetak radova planiran je za kraj godine.

Kupac ne plaća agencijsku proviziju.
Za dodatne informacije kontaktirajte nas: 065/90 73 165.
Oznaka na mapi pokazuje približnu lokaciju nekretnine, ali ne i tačnu adresu.

Objavljen:

Cena: 75.095,00 EUR