NOVI SAD - CENTAR - 45.00 m2

Lokacija: Centar (Srbija, Novi Sad, Novi Sad)
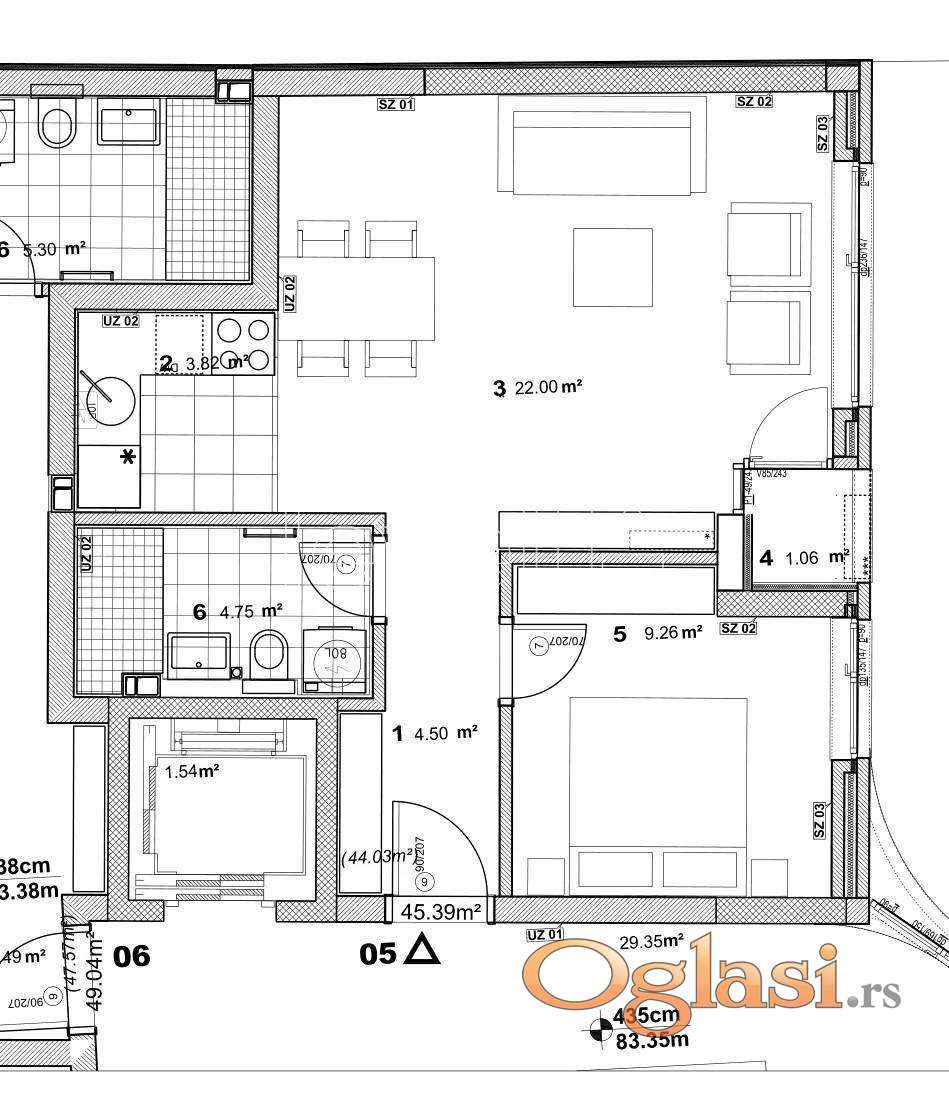
Sobnost: Dvosoban
Kvadratura: 45m2
Grejanje: Gradsko
Nivo u zgradi: 1. sprat

Tekst oglasa

NEKRETNINE NOVI SAD

CENTAR, DVOSOBAN STAN, 45m2

LEVEL PROPERTY, agencija za nekretnine Vam predstavlja odličan, dvosoban stan u izgradnji. 

U jednoj od najmirnijih ulica samog centra grada nastaje moderan stambeni objekat prepoznatljivog dizajna i čistih linija. Fasada kombinuje svetle materijale i toplu teksturu prizemlja, stvarajući sklad koji naglašava eleganciju i urban karakter buduće zgrade.
Izgradnju vodi investitor sa dugogodišnjim iskustvom i reputacijom vrhunskog kvaliteta. Prepoznatljiv je po pouzdanoj gradnji, pažljivo odabranim materijalima i završnoj obradi koja godinama zadržava svoj visoki standard. Planirani rok završetka radova je kraj 2026. godine.
Posebna pažnja posvećena je komforu i dugotrajnosti. Stanovi će imati hrastov parket, italijansku keramiku u kupatilima i akrilnu kadu, dok sigurnosna ulazna vrata, ALU stolarija i medijapan sobna vrata donose visok nivo izdržljivosti i estetike. Hodnici će biti uređeni u keramici, a zgrada će imati električni lift i potpuno pokrivene ulaze video-nadzorom.
U podzemnom nivou obezbeđena su garažna mesta, što predstavlja značajnu prednost u centralnoj gradskoj zoni.
Ovaj projekat donosi spoj vrhunskog kvaliteta, mirnog okruženja i prestižne lokacije, uz sigurnost pouzdanog investitora i jasan plan završetka izgradnje.

Poštovani klijenti, u skladu sa Zakonom o posredovanju u prometu i zakupu nepokretnosti i Opštim uslovima poslovanja posrednika, prezentacija i razgledanje ove nekretnine moguće je samo uz potpisan Ugovor o posredovanju.

Poštovani klijenti, u skladu sa Zakonom o posredovanju u prometu i zakupu nepokretnosti i Opštim uslovima poslovanja posrednika, prezentacija i razgledanje ove nekretnine moguće je samo uz potpisan Ugovor o posredovanju.

Vaš agent za nekretnine: Jelena Stakić, licenca broj 3726, mob: 0691678979.
Vaša agencija za nekretnine LEVEL PROPERTY, registar posrednika broj 1949, Novi Sad, Dimitrija Tucovića 1, lokal broj 3, tel:021/24-007-00.
Objavljen:

Cena: 149.787,00 EUR