Novogradnja, Mirijevo, 59.24 m2, cena bez pdv-a
| Lokacija: | Mirijevo (Srbija, Beograd, Zvezdara) |
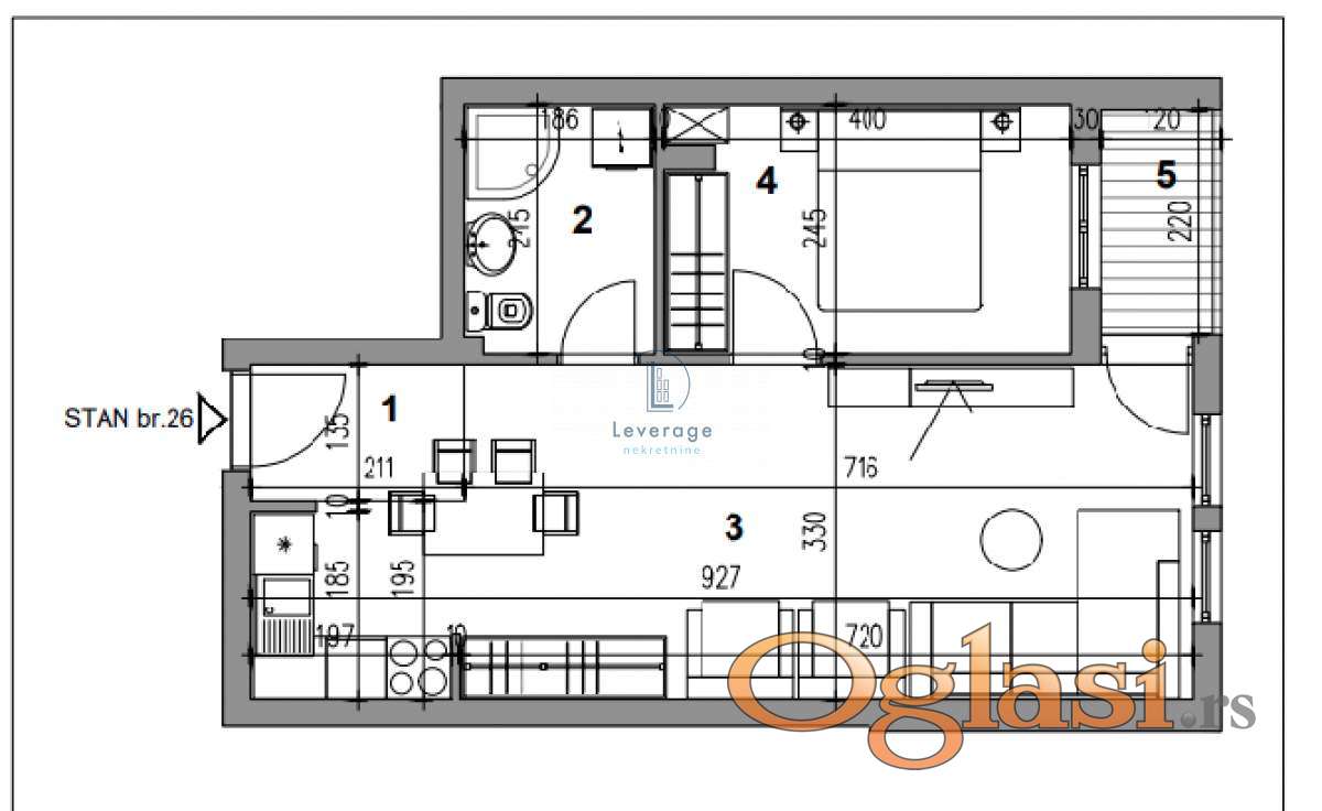
| Sobnost: | Dvoiposoban |
| Kvadratura: | 59m2 |
| Stanje objekta: | Novogradnja |
| Grejanje: | Ostalo |
| Nivo u zgradi: | 1. sprat |
Dodatne informacije
Lift, Parking, garaža, Internet, Telefon, Satelitska, kablovska TV, Klima
Tekst oglasa
Jedan od najmodernijih kompleksa na odličnoj lokaciji u Mirijevu, sa pogledom na Dunav i Avalu. Savremeni dizajn objekta je izražen! Kompleks je izgrađen od najkvalitetnijih materijala na tržištu renomiranih stranih proizvođača. Stolarija je PVC petokomorna, keramika granitna prve klase, a parket je hrastov, debljine 22 mm. Stanovi su veoma komforni i svetli, odaju utisak porodične idile, okruženi zelenilom i izolovani od gradske buke, a ipak nadomak centra grada. U okruženju su osnovna škola, vrtići, pošta, banke, Maxi...
Planirana je stanica metroa u blizini, kao i obilaznica i nekoliko novih autobuskih linija.
Konkretno ovaj stan se sastoji od dnevnog boravka sa kuhinjom i trpezarijom, dve spavaće sobe, kupatila, hodnika i lođe.
Postoji mogućnost kupovine garažnog mesta po ceni od 10.000 eur sa pdv-om.
Cene su podložne korekciji i direktno zavise od načina i dinamike plaćanja.
Rok završetka radova je krajem 2027.
Odlična inesticija!
Agencijska provizija iznosi 2% od kupoprodajne cene.
Kontaktirajte nas za više informacija.
Obnovljen:
Cena: 112.556,00 EUR
