Lokal, Đeram, 118 m2, cena + pdv
| Lokacija: | Đeram pijaca (Srbija, Beograd, Zvezdara) |
| Kvadratura: | 118m2 |
| Namena prostora: | Lokal |
Dodatne informacije
Marka Oreškovića, Prizemlje, Nenamešten
Tekst oglasa
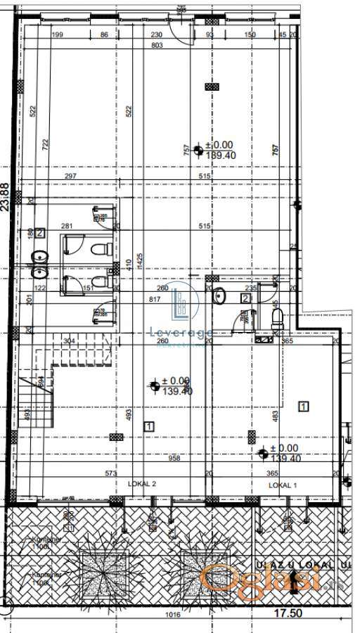
U ponudi je odlično pozicioniran lokal u novogradnji, idealan za ozbiljne firme ili maloprodajne objekte, uključujući markete, jer je prostor već ranije korišćen u tu svrhu. Lokal se nalazi na izuzetnoj lokaciji i na spratu koji dodatno doprinosi njegovoj vidljivosti i pristupačnosti.
Sastoji se iz dva funkcionalna nivoa, što omogućava organizaciju prostora prema potrebama različitih delatnosti. Pogodan je za kancelarijski rad, prodaju, uslužne delatnosti i sve vrste biznisa kojima je važna frekventna i dobro povezena pozicija.
Odlična prilika za ulaganje ili pokretanje posla u reprezentativnom prostoru.
Agencijska provizija iznosi 50% od prve mesečne zakupnine.
Kontaktirajte nas za više informacija.
Objavljen:
Cena: 2.500,00 EUR
