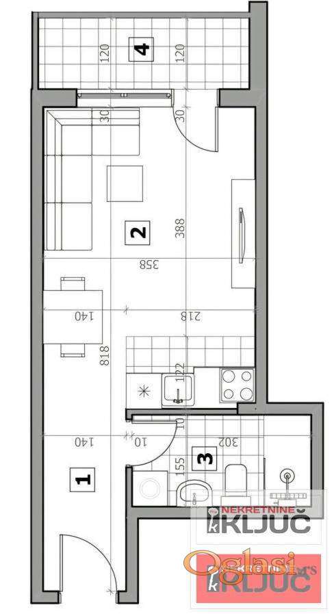
SREMSKA KAMENICA, 31m2, Garsonjera sa pdv
| Lokacija: | Sremska Kamenica (Srbija, Novi Sad) |
| Sobnost: | Garsonjera |
| Kvadratura: | 31m2 |
| Stanje objekta: | U izgradnji |
| Grejanje: | Gas |
| Nivo u zgradi: | 1. sprat |
Dodatne informacije
Terasa, Lift, Internet, Telefon, Satelitska, kablovska TV
Tekst oglasa
Prodaje se garsonjera u SREMSKOJ KAMENICI površine 31m2. Stan je u izgradnji. Odlično je povezan sa glavnim saobračajnicama. Cena stana sa pdv. Vrhunski kvalitet gradnje i opreme. Stan zavređuje pažnju. Pozovite da pogledate.
Obnovljen:
Cena: 73.950,00 EUR
