SREMSKA KAMENICA, 60m2, Trosoban sa pdv, Izgradnja, Vila

Cena: 170.500,00 EUR

www.oglasi.rs

Kategorija: Stanova (Nekretnine, Prodaja)
Lokacija: Sremska Kamenica (Srbija, Novi Sad)

Sobnost: Trosoban
Kvadratura: 60
Grejanje: Etažno
Nivo u zgradi: 1. sprat

Dodatne informacije:


Tekst oglasa:

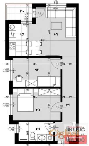
Prodaje se 3.0 stan u SREMSKOJ KAMENICI, TATARSKO BRDO površine 60m2. Stan je u izgradnji. Cena stana sa pdv. U pitanju je moderna vila sa nekoliko stambenih jedinica. U gradnji se koriste samo visokokvalitetni materijali,aluminijumska stolarija najnovije generacije,energetski efikasni fasadni sistemi,termo i hidro izolacija premium klase,kvalitetne keramike i parketi,podno grejanje u svim prostorijama.Kompleks je potpuno digitalizovan, sa smart-home sistemima,daljinsko upravljanje grejanjem i hlađenjem,pametno osvetljenje,alarm i video nadzor,kontrola potrošnje energije. Cena uključuje agencijsku proviziju.

Šifra oglasa: 03-3753859
Datum postavljanja oglasa: 15.01.2026

Kontakt: KLJUČ NEKRETNINE br. 360 u Reg. Posr.
Telefon: 0605246010

www.oglasi.rs
Free Press d.o.o Šafarikova 15, 21000 Novi Sad, +381 21 48 04 555